![图片[1]-【青年首刊】施强虹 | 温州200m²住宅空间-云层之上,浮光若梦-S+对我们来说每个案子都是私人定制](https://sucaitop.oss-cn-shanghai.aliyuncs.com/sqh/frc-e8c50bd9ec14742c54dcaae7575c3383.jpeg)
施强虹
设计主理人
一切美好的艺术来自人类的精神
不需要任何外表的虚饰
——邓肯
![图片[2]-【青年首刊】施强虹 | 温州200m²住宅空间-云层之上,浮光若梦-S+对我们来说每个案子都是私人定制](https://sucaitop.oss-cn-shanghai.aliyuncs.com/sqh/frc-5c4e02d4241b961fc08cc61fa5bb36ac.png)
![图片[3]-【青年首刊】施强虹 | 温州200m²住宅空间-云层之上,浮光若梦-S+对我们来说每个案子都是私人定制](https://sucaitop.oss-cn-shanghai.aliyuncs.com/sqh/frc-16f157355923abce725db6cf5b9b5ed2.png)
01
感官印象
当事物突破表面局限,用建筑思维梳理结构框架,光与暗、静与动,触发层次之间的联结,居家灵感应运而生。
设计以细腻尺度述说着人与自然的交互,以光为介质凝聚精神场的纯粹感知,解构生活律动之息,唤醒形神归处。
![图片[4]-【青年首刊】施强虹 | 温州200m²住宅空间-云层之上,浮光若梦-S+对我们来说每个案子都是私人定制](https://sucaitop.oss-cn-shanghai.aliyuncs.com/sqh/frc-ddf7dd6502cfedc8ef6a34477ac0671d.png)
玄关以原木作结构延伸,搭建一个自然包裹的骨架,在暖光营造中,为入门牵引一场回家的松弛感。
设计在功能上充分考虑外出衣物、鞋子、杂物的收纳,关照生活的每一处细节体验,举动间萦绕器物之韵,功能与美学平衡衔接。
![图片[5]-【青年首刊】施强虹 | 温州200m²住宅空间-云层之上,浮光若梦-S+对我们来说每个案子都是私人定制](https://sucaitop.oss-cn-shanghai.aliyuncs.com/sqh/frc-d86cbb563abb95a56f21d8cbd59be409.png)
![图片[6]-【青年首刊】施强虹 | 温州200m²住宅空间-云层之上,浮光若梦-S+对我们来说每个案子都是私人定制](https://sucaitop.oss-cn-shanghai.aliyuncs.com/sqh/frc-320b6c93db4b4387a9a6664589b5274a.png)
客厅作为家庭成员的主要活动区,以低饱和色系融入整体感官,退让多余修饰,通过更随性的方式规划家具展陈,以此释放空间的自由度。柔光通透入里,虽简尤丰,为这处现代简约的场域塑造更多样的可能性。
![图片[7]-【青年首刊】施强虹 | 温州200m²住宅空间-云层之上,浮光若梦-S+对我们来说每个案子都是私人定制](https://sucaitop.oss-cn-shanghai.aliyuncs.com/sqh/frc-9d5e3f6d1f55d7fd25ce3282e9076058.png)
![图片[8]-【青年首刊】施强虹 | 温州200m²住宅空间-云层之上,浮光若梦-S+对我们来说每个案子都是私人定制](https://sucaitop.oss-cn-shanghai.aliyuncs.com/sqh/frc-7f60efa43a454b4697019aa05237c61a.png)
客厅背景拼接局部木饰面,通过折转、内凹,打造出一隅自然天地。绿植静立,在光合作用中延展生命力的脉络,焕活一室生机。
![图片[9]-【青年首刊】施强虹 | 温州200m²住宅空间-云层之上,浮光若梦-S+对我们来说每个案子都是私人定制](https://sucaitop.oss-cn-shanghai.aliyuncs.com/sqh/frc-0a09f2438c09b41edaf1471a99967742.png)
![图片[10]-【青年首刊】施强虹 | 温州200m²住宅空间-云层之上,浮光若梦-S+对我们来说每个案子都是私人定制](https://sucaitop.oss-cn-shanghai.aliyuncs.com/sqh/frc-0ddfba4e8480c982222b8cf82198039d.png)
两层结构同时塑造上下界面关系,将公共区与私人区秩序分布,合理调度生活动线。整体风格以留白为底,铺叙木色肌理,静享自然治愈。
![图片[11]-【青年首刊】施强虹 | 温州200m²住宅空间-云层之上,浮光若梦-S+对我们来说每个案子都是私人定制](https://sucaitop.oss-cn-shanghai.aliyuncs.com/sqh/frc-94724b514b959e3aefdcababf83d98e0.png)
![图片[12]-【青年首刊】施强虹 | 温州200m²住宅空间-云层之上,浮光若梦-S+对我们来说每个案子都是私人定制](https://sucaitop.oss-cn-shanghai.aliyuncs.com/sqh/frc-d5517fe62b2d217183c72b76465910d2.png)
![图片[13]-【青年首刊】施强虹 | 温州200m²住宅空间-云层之上,浮光若梦-S+对我们来说每个案子都是私人定制](https://sucaitop.oss-cn-shanghai.aliyuncs.com/sqh/frc-f24a68a3006ed0ab8ca94bfa4ae46eea.png)
“投射在白色物体上的光,是最为节制且明暗丰富的”。电视机背景墙铺展大面积留白,嵌套黑色几何结构,以序列感的线条语言刻画极简艺术。黑白之间,明暗至简,感知内心深处的自我世界。
![图片[14]-【青年首刊】施强虹 | 温州200m²住宅空间-云层之上,浮光若梦-S+对我们来说每个案子都是私人定制](https://sucaitop.oss-cn-shanghai.aliyuncs.com/sqh/frc-375dd3eb4022d3a2c4ff98dafd286c53.png)
![图片[15]-【青年首刊】施强虹 | 温州200m²住宅空间-云层之上,浮光若梦-S+对我们来说每个案子都是私人定制](https://sucaitop.oss-cn-shanghai.aliyuncs.com/sqh/frc-dfd2564b81340ca51cdf5cd2a991be96.png)
02
剧场演绎
立于自由通透的场域,赋予生活无限视角,塑造不同的情景剧场。从餐厅游走于客厅,人与人的交流界限被逐层打破,建立起一个强有力的纽带,串联空间始末,将生活本味绽放于各个角落。
![图片[16]-【青年首刊】施强虹 | 温州200m²住宅空间-云层之上,浮光若梦-S+对我们来说每个案子都是私人定制](https://sucaitop.oss-cn-shanghai.aliyuncs.com/sqh/frc-d914a3f95715fb54e7e4f2b2e79d7ba2.png)
![图片[17]-【青年首刊】施强虹 | 温州200m²住宅空间-云层之上,浮光若梦-S+对我们来说每个案子都是私人定制](https://sucaitop.oss-cn-shanghai.aliyuncs.com/sqh/frc-499d2f9fe1a39b879a1a46d2e2293889.png)
![图片[18]-【青年首刊】施强虹 | 温州200m²住宅空间-云层之上,浮光若梦-S+对我们来说每个案子都是私人定制](https://sucaitop.oss-cn-shanghai.aliyuncs.com/sqh/frc-52302ebe6232b74482c05eed0f5cc919.png)
开放式餐厅位于公共区的动线交织点,与各区域模块互动游离。圆桌凝聚家庭的温情,述说触手可及的日常。在纯白与光影的润色中,食一碗烟火,偷半日浮闲,
![图片[19]-【青年首刊】施强虹 | 温州200m²住宅空间-云层之上,浮光若梦-S+对我们来说每个案子都是私人定制](https://sucaitop.oss-cn-shanghai.aliyuncs.com/sqh/frc-8ff9bae583f0adc7ff0b8301eb7aa529.png)
![图片[20]-【青年首刊】施强虹 | 温州200m²住宅空间-云层之上,浮光若梦-S+对我们来说每个案子都是私人定制](https://sucaitop.oss-cn-shanghai.aliyuncs.com/sqh/frc-0a0ba0300aebfd7d7bd2934de6b0aee7.png)
![图片[21]-【青年首刊】施强虹 | 温州200m²住宅空间-云层之上,浮光若梦-S+对我们来说每个案子都是私人定制](https://sucaitop.oss-cn-shanghai.aliyuncs.com/sqh/frc-514b1f6d1be714f517c721178cacc278.png)
空间的开放式联通,让设计不再单一。餐边柜与客厅背景墙拼接融合,公共框架形成统一的整体。设计将餐厨开放联结,打通了用餐与烹饪之间的互动,为美食赋予更生动的寓意,充满期待与惊喜。
![图片[22]-【青年首刊】施强虹 | 温州200m²住宅空间-云层之上,浮光若梦-S+对我们来说每个案子都是私人定制](https://sucaitop.oss-cn-shanghai.aliyuncs.com/sqh/frc-8790441d8c07d6801284dc29659a15ff.png)
![图片[23]-【青年首刊】施强虹 | 温州200m²住宅空间-云层之上,浮光若梦-S+对我们来说每个案子都是私人定制](https://sucaitop.oss-cn-shanghai.aliyuncs.com/sqh/frc-b40ad4dd783141c3ad8238c69ca8d9d1.png)
动线穿过厨房边界,进入茶室空间,如人海中的静谧天地。光影穿透茶香,喧嚣归于平静,心境逐渐内敛平和。
![图片[24]-【青年首刊】施强虹 | 温州200m²住宅空间-云层之上,浮光若梦-S+对我们来说每个案子都是私人定制](https://sucaitop.oss-cn-shanghai.aliyuncs.com/sqh/frc-fa6cd4fd22ab8305ce888a2a2444885d.png)
![图片[25]-【青年首刊】施强虹 | 温州200m²住宅空间-云层之上,浮光若梦-S+对我们来说每个案子都是私人定制](https://sucaitop.oss-cn-shanghai.aliyuncs.com/sqh/frc-62388b977cf799ff3e1199eb5f5474d8.png)
03
一隅安室
楼梯联通上下立面,由原木体块拼接,蜿蜒而上逐层生长,仿佛一处天然的装置,释放建筑体的跃动。
![图片[26]-【青年首刊】施强虹 | 温州200m²住宅空间-云层之上,浮光若梦-S+对我们来说每个案子都是私人定制](https://sucaitop.oss-cn-shanghai.aliyuncs.com/sqh/frc-b634f28b5c7f3079eae87c5e4fa9fdce.png)
![图片[27]-【青年首刊】施强虹 | 温州200m²住宅空间-云层之上,浮光若梦-S+对我们来说每个案子都是私人定制](https://sucaitop.oss-cn-shanghai.aliyuncs.com/sqh/frc-a34b2ab12c626fd77b7aeeaea14f03a9.png)
私人区根据不同风格的形式展现,以柔软的内核呈现居者更加细腻的生活方式。女儿房一改公共区素雅之貌,点缀活力的艺术色彩,搭配多元结构造型,述说灵动气息。
![图片[28]-【青年首刊】施强虹 | 温州200m²住宅空间-云层之上,浮光若梦-S+对我们来说每个案子都是私人定制](https://sucaitop.oss-cn-shanghai.aliyuncs.com/sqh/frc-e970856c0007c4cc3df073d2d2664975.png)
![图片[29]-【青年首刊】施强虹 | 温州200m²住宅空间-云层之上,浮光若梦-S+对我们来说每个案子都是私人定制](https://sucaitop.oss-cn-shanghai.aliyuncs.com/sqh/frc-3a0856c530a051a01b9f9a0cb0c352d6.png)
![图片[30]-【青年首刊】施强虹 | 温州200m²住宅空间-云层之上,浮光若梦-S+对我们来说每个案子都是私人定制](https://sucaitop.oss-cn-shanghai.aliyuncs.com/sqh/frc-3757ab8dce63fd3ad23523e637254ee0.png)
客卧保留简约修饰,色调搭配清丽简雅。自然光作为叙事的脉络之一,幻化时间的印记,伴随柔软触感,浮光入梦。
![图片[31]-【青年首刊】施强虹 | 温州200m²住宅空间-云层之上,浮光若梦-S+对我们来说每个案子都是私人定制](https://sucaitop.oss-cn-shanghai.aliyuncs.com/sqh/frc-fae4de263edd6f3f229b8da8b1bfd5ac.png)
![图片[32]-【青年首刊】施强虹 | 温州200m²住宅空间-云层之上,浮光若梦-S+对我们来说每个案子都是私人定制](https://sucaitop.oss-cn-shanghai.aliyuncs.com/sqh/frc-89cb0b4a1202616cd6a43edc10a3e8a4.png)
![图片[33]-【青年首刊】施强虹 | 温州200m²住宅空间-云层之上,浮光若梦-S+对我们来说每个案子都是私人定制](https://sucaitop.oss-cn-shanghai.aliyuncs.com/sqh/frc-15971e942781035b89a602570bab5cea.png)
最真实的感知,往往存在于简约的形制中,深刻贴合着人的内心。主卧渲染润白基调,联结原木的自然属性,造清雅之意。设计基于生活合理调度功能布局,将衣帽间设置于床位后方,营造精致的生活仪式感。
![图片[34]-【青年首刊】施强虹 | 温州200m²住宅空间-云层之上,浮光若梦-S+对我们来说每个案子都是私人定制](https://sucaitop.oss-cn-shanghai.aliyuncs.com/sqh/frc-94f83169fa1ac3edc42b0a3c92904367.png)
主卧环绕充足的光亮,透过纱幔愈发空灵飘渺。独立的外拓阳台,为人、自然、空间打破了交流屏障。望江而立,随心随景浸润于环境的治愈力,在感官与精神的双重体验中塑造生活之诗。
![图片[35]-【青年首刊】施强虹 | 温州200m²住宅空间-云层之上,浮光若梦-S+对我们来说每个案子都是私人定制](https://sucaitop.oss-cn-shanghai.aliyuncs.com/sqh/frc-d23de5ed6de93d583ac87af7f9d222fd.png)
![图片[36]-【青年首刊】施强虹 | 温州200m²住宅空间-云层之上,浮光若梦-S+对我们来说每个案子都是私人定制](https://sucaitop.oss-cn-shanghai.aliyuncs.com/sqh/frc-9d223e3a1f5a679b7d69e80a44ca7b43.png)
日出的薄雾将天际线逐层渐变,似虚似实,模糊内外界限。人与自然的尺度再次扩容,呈现自然无限的延展力量。
![图片[37]-【青年首刊】施强虹 | 温州200m²住宅空间-云层之上,浮光若梦-S+对我们来说每个案子都是私人定制](https://sucaitop.oss-cn-shanghai.aliyuncs.com/sqh/frc-774bc4121cf1c96bec9164b34f79c414.png)
![图片[38]-【青年首刊】施强虹 | 温州200m²住宅空间-云层之上,浮光若梦-S+对我们来说每个案子都是私人定制](https://sucaitop.oss-cn-shanghai.aliyuncs.com/sqh/frc-b4c391903fe0cc2565a4b8578a2eb87b.png)
![图片[39]-【青年首刊】施强虹 | 温州200m²住宅空间-云层之上,浮光若梦-S+对我们来说每个案子都是私人定制](https://sucaitop.oss-cn-shanghai.aliyuncs.com/sqh/frc-53ac1298116afb707dbea9668ad4cd7b.png)
设计将主卫的功能模块有机调节,在流畅高效的布局基础上,持续探索实用美学的艺术化表达,抒发内在的自由与浪漫。
![图片[40]-【青年首刊】施强虹 | 温州200m²住宅空间-云层之上,浮光若梦-S+对我们来说每个案子都是私人定制](https://sucaitop.oss-cn-shanghai.aliyuncs.com/sqh/frc-684b8f258f16629d07637bbfad713a29.png)
![图片[41]-【青年首刊】施强虹 | 温州200m²住宅空间-云层之上,浮光若梦-S+对我们来说每个案子都是私人定制](https://sucaitop.oss-cn-shanghai.aliyuncs.com/sqh/frc-9dcb37e332a3cd8a396c2f834ee5557f.png)
辗转复行,进入公共区花园更觉豁然开朗。细心构造的端景与天际线相称,在自然的召唤中,持续探索着人与环境的有机互动。而关于自然与生活的讨论,一直于此处上演,为都市居家赋予真实可感的新形态。
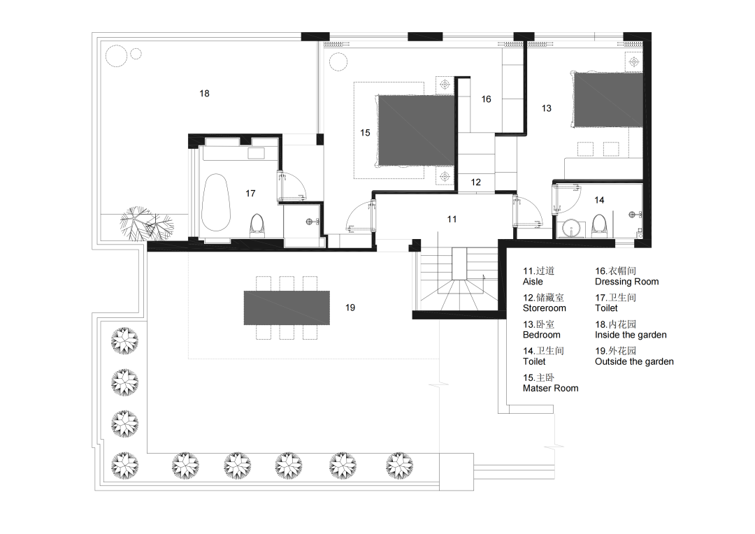
项目平面
(左右滑动浏览)
项目信息
项⽬名称:云层之上,浮光若梦
项⽬⾯积:200m²
主案设计:施强虹、许如意
内容策划:橙设传媒
项目摄影:無介视觉
设计时间:2022年3月
完⼯时间:2023年12月
主要材料:木饰面、岩板、艺术漆、木地板
![图片[44]-【青年首刊】施强虹 | 温州200m²住宅空间-云层之上,浮光若梦-S+对我们来说每个案子都是私人定制](https://sucaitop.oss-cn-shanghai.aliyuncs.com/sqh/frc-a904f56305e419ea58c7671dc10feb68.png)
![图片[42]-【青年首刊】施强虹 | 温州200m²住宅空间-云层之上,浮光若梦-S+对我们来说每个案子都是私人定制](https://sucaitop.oss-cn-shanghai.aliyuncs.com/sqh/frc-1581adde082e8ab6c5fc38cdce1a38f9.png)
![图片[43]-【青年首刊】施强虹 | 温州200m²住宅空间-云层之上,浮光若梦-S+对我们来说每个案子都是私人定制](https://sucaitop.oss-cn-shanghai.aliyuncs.com/sqh/frc-55b2d980b2eac01bb383b5024e2ea546.png)







暂无评论内容